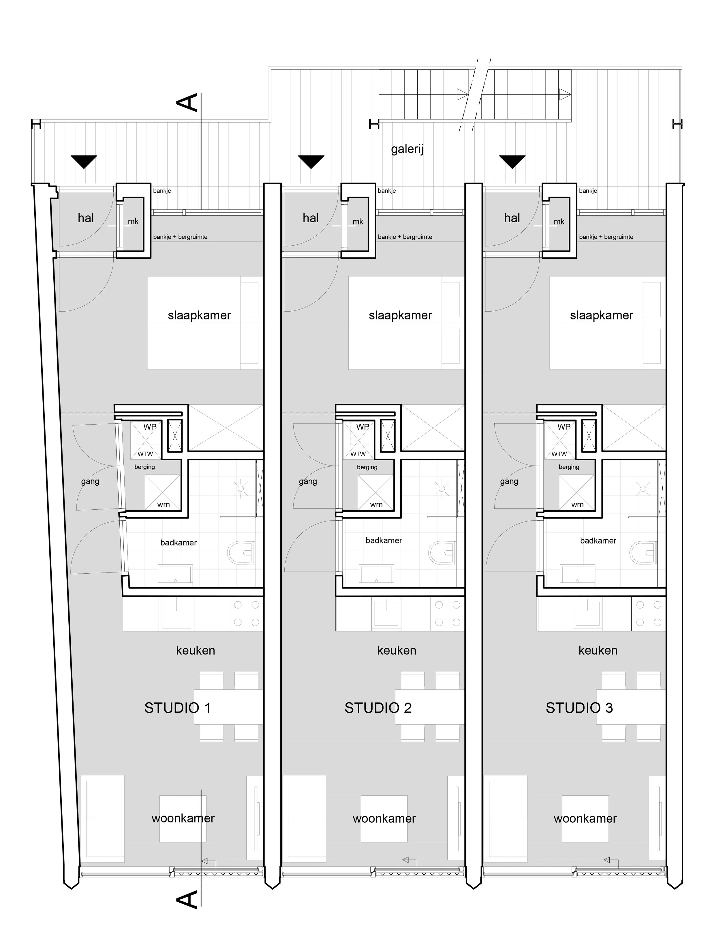
Aan de 1e Wijkstraat in het Spijkerkwartier van Arnhem worden in 6 loftstudio’s gerealiseerd boven een parkeervoorziening. De woningen zijn voorzien van een gezamenlijke buitenruimte aan de achterzijde, door middel van een brede galerij met in de gevel opgenomen vaste zitbanken, grenzend aan een binnentuin met monumentale boom. Parkeren en fietsenberging vinden onder het gebouw plaats.

Ons doel voor het project is meer sociale interactie teweeg te brengen aan een op dit moment nog gedateerd plein wat vol staat met auto’s. Door toevoegen van meer woningen met balkons aan de voorzijde, verwachten we meer contact en sociale controle te kunnen bewerkstelligen.

De woningen worden vanaf de 1e verdieping geheel opgetrokken in houtskeletbouw en voldoen aan de BENG normering, waarmee ze zeer energiezuinig zullen zijn. De woningen waren oorspronkelijk voorzien van volwaardige balkons aan de voorzijde, de gemeente staat in deze gevelrij alleen Franse balkons toe.

TREEHOUSE SPIJKERKWARTIER

Opdrachtgever: Bright Bricks B.V.

Ontwerpteam: Daniël Breuer, Pascal Janssen

Management: Daniël Breuer

Omvang: ca. 250 m2 BVO.

Bouwjaar: 2022-2023

Vorige
Vorige

Royal / Arnhem

Volgende
Volgende

Perplex / Arnhem